Land adj to Boars Head
Building Plots, Land Adj Boars Head , Worcestershire, WR8 9JA
- 0
Key features
Guide Price: *
£200,000
Fees apply
Buyer's fee:£4,800
All fees include VAT at 20%
Auction Type:
† Traditional
Opening bid:
£195,000Bid history
0 bidsFor sale by online auction ending **12th MAY 2026 at 12 NOON **
Description
Planning Application No. M/24/01651/OUT was approved on the 19th December 2025.
A purchaser will be subject to:
• Outline Application for the proposed erection for two dwellings with all matters reserved, expect for details of access.
• The Biodiversity Net Gain (BNG) for the development is to be delivered via an approved offsite habitat bank, with standard onsite ecological enhancements included as required by planning conditions.
• Progress the Reserved Matter Application required for the approval of appearance, landscaping, layouts, and scale
• A Section 106 agreement which has an Affordable Housing Contribution of £25,594 (Twenty-five thousand five hundred and ninety-four pounds)
• A Community Infrastructure Levy (CIL liability) and liable to be paid to Malvern Hills District Council as a CIL collecting authority
• Full information is available in the legal pack
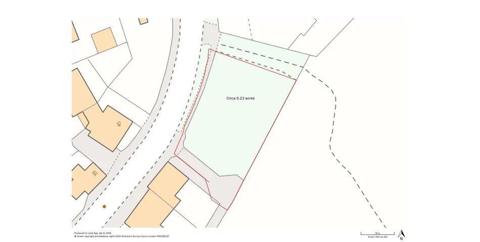
• Total plot extends to about 0.23 acres
Situation
Severn Stoke is a picturesque village in south Worcestershire that combines rich history, beautiful countryside, and a welcoming rural community. Located just a short distance from Worcester. The M5 motorway is accessible at junction & railway stations can be found in the City or Worcester Parkway just off Junction 7. Excellent shopping and leisure facilities can be found in Worcester as well as a choice of excellent state and independent schools.
Services
No services are connected.
We understand that the property is likely to have current mobile coverage (data taken from checker.ofcom.org.uk on 17/03/2026). Please note that actual services available may be different depending on the particular circumstances, precise location and network outages.
Tenure
The land is to be sold freehold with vacant possession.
Local Authority
Malvern Hills District Council
Public rights of way, wayleaves and easements
The land is sold subject to all rights of way, wayleaves and easements whether or not they are defined in this brochure.
Planning
The selling agents will not provide advice/guidance on the planning history for the property/land. Interested parties are advised to make their own investigations. It is assumed that enquiries have been satisfied, prior to an offer being made.
Anti Money Laundering Regulations (AML)
In accordance with Anti Money Laundering Regulations (AML), we are required to request forms of identification and carry out due diligence on any parties connected to a successful offer. Should an offer be made on behalf of a business/company, AML due diligence will also be necessary. Proof/source of funding must be supplied, prior to offer acceptance.
Method of sale
The land is offered for sale by online auction method however the vendor reserves the right to conclude the sale by an alternative method if required.
Plans and boundaries
The plans within these particulars are based on Ordnance Survey data and provided for reference only. They are believed to be correct but accuracy is not guaranteed. The purchaser shall be deemed to have full knowledge of all boundaries and the extent of ownership. Neither the vendor nor the vendor’s agents will be responsible for defining the boundaries or the ownership thereof.
Finance your purchase
If you require advice on how to finance a purchase through auction, please go to www.cherrystreetfinance.com our trusted partners, or ask our team for further details.
Important notices
This property is available for sale by online auction. Interested buyers will need to register in advance and complete an ID verification before being able to place a bid.
There is no charge for registering. Buyers should allow sufficient time to complete this process before the time period expires. Full details can be found on Fisher German’s online auction page www.fishergerman.co.uk/current-auctions
Legal pack
A legal pack and any special conditions will be available on Fisher German’s online auction page and interested parties will need to register before accessing the legal documents. It is the responsibility of a prospective purchaser to make all necessary enquiries prior to the auction.
Conditions of sale
The property will, unless previously withdrawn, be sold subject to common auction conditions and special conditions of each sale may be found in the legal documents section of the Fisher German online auction page. Each purchaser shall be deemed to have notice of each condition and all the terms thereof and to bid on those terms whether they shall have inspected the said conditions or not.
Completion
Completion will take place 20 working days after exchange of contracts, unless otherwise varied and specified in the legal pack.
Fees
The purchase of this property is subject to a combined buyer and admin fee of £6,000 including VAT as stated on the auction listing. The buyer will also be required to reimburse the search fees of £600 including VAT.
Deposit
The full 10% deposit shall be transferred by the buyer to their solicitor for onward transmission by 12 noon the following working day to the seller’s lawyer. It is therefore essential that you instruct your solicitor ahead of the auction.
Viewings
Strictly by appointment through Fisher German LLP.
Directions
Postcode – WR8 9JA
what3words – ///dries.stall.pollution
Note
Existing self build application accepted relocation of footpath. Self building planning number M/22/01870/OUT
The winning buyer must pay £6,000 automatically at the end of the auction of which:
£4,000 is the buyer fee
£2,000 is the admin fee
For sale by online auction ending **12th MAY 2026 at 12 NOON **
Description
Planning Application No. M/24/01651/OUT was approved on the 19th December 2025.
A purchaser will be subject to:
• Outline Application for the proposed erection for two dwellings with all matters reserved, expect for details of access.
• The Biodiversity Net Gain (BNG) for the development is to be delivered via an approved offsite habitat bank, with standard onsite ecological enhancements included as required by planning conditions.
• Progress the Reserved Matter Application required for the approval of appearance, landscaping, layouts, and scale
• A Section 106 agreement which has an Affordable Housing Contribution of £25,594 (Twenty-five thousand five hundred and ninety-four pounds)
• A Community Infrastructure Levy (CIL liability) and liable to be paid to Malvern Hills District Council as a CIL collecting authority
• Full information is available in the legal pack
• Total plot extends to about 0.23 acres
Situation
Severn Stoke is a picturesque village in south Worcestershire that combines rich history, beautiful countryside, and a welcoming rural community. Located just a short distance from Worcester. The M5 motorway is accessible at junction & railway stations can be found in the City or Worcester Parkway just off Junction 7. Excellent shopping and leisure facilities can be found in Worcester as well as a choice of excellent state and independent schools.
Services
No services are connected.
We understand that the property is likely to have current mobile coverage (data taken from checker.ofcom.org.uk on 17/03/2026). Please note that actual services available may be different depending on the particular circumstances, precise location and network outages.
Tenure
The land is to be sold freehold with vacant possession.
Local Authority
Malvern Hills District Council
Public rights of way, wayleaves and easements
The land is sold subject to all rights of way, wayleaves and easements whether or not they are defined in this brochure.
Planning
The selling agents will not provide advice/guidance on the planning history for the property/land. Interested parties are advised to make their own investigations. It is assumed that enquiries have been satisfied, prior to an offer being made.
Anti Money Laundering Regulations (AML)
In accordance with Anti Money Laundering Regulations (AML), we are required to request forms of identification and carry out due diligence on any parties connected to a successful offer. Should an offer be made on behalf of a business/company, AML due diligence will also be necessary. Proof/source of funding must be supplied, prior to offer acceptance.
Method of sale
The land is offered for sale by online auction method however the vendor reserves the right to conclude the sale by an alternative method if required.
Plans and boundaries
The plans within these particulars are based on Ordnance Survey data and provided for reference only. They are believed to be correct but accuracy is not guaranteed. The purchaser shall be deemed to have full knowledge of all boundaries and the extent of ownership. Neither the vendor nor the vendor’s agents will be responsible for defining the boundaries or the ownership thereof.
Finance your purchase
If you require advice on how to finance a purchase through auction, please go to www.cherrystreetfinance.com our trusted partners, or ask our team for further details.
Important notices
This property is available for sale by online auction. Interested buyers will need to register in advance and complete an ID verification before being able to place a bid.
There is no charge for registering. Buyers should allow sufficient time to complete this process before the time period expires. Full details can be found on Fisher German’s online auction page www.fishergerman.co.uk/current-auctions
Legal pack
A legal pack and any special conditions will be available on Fisher German’s online auction page and interested parties will need to register before accessing the legal documents. It is the responsibility of a prospective purchaser to make all necessary enquiries prior to the auction.
Conditions of sale
The property will, unless previously withdrawn, be sold subject to common auction conditions and special conditions of each sale may be found in the legal documents section of the Fisher German online auction page. Each purchaser shall be deemed to have notice of each condition and all the terms thereof and to bid on those terms whether they shall have inspected the said conditions or not.
Completion
Completion will take place 20 working days after exchange of contracts, unless otherwise varied and specified in the legal pack.
Fees
The purchase of this property is subject to a combined buyer and admin fee of £6,000 including VAT as stated on the auction listing. The buyer will also be required to reimburse the search fees of £600 including VAT.
Deposit
The full 10% deposit shall be transferred by the buyer to their solicitor for onward transmission by 12 noon the following working day to the seller’s lawyer. It is therefore essential that you instruct your solicitor ahead of the auction.
Viewings
Strictly by appointment through Fisher German LLP.
Directions
Postcode – WR8 9JA
what3words – ///dries.stall.pollution
Note
Existing self build application accepted relocation of footpath. Self building planning number M/22/01870/OUT
The winning buyer must pay £6,000 automatically at the end of the auction of which:
£4,000 is the buyer fee
£2,000 is the admin fee
Summary
- Auction end
- 12th May at 11:00
- Property type
- Land
- Tenure
- Freehold
- Council tax band
- N/A
Guide Price: *
£200,000
Fees apply
Buyer's fee:£4,800
All fees include VAT at 20%
Auction Type:
† Traditional
Opening bid:
£195,000Bid history
0 bidsSummary
- Auction end
- 12th May at 11:00
- Property type
- Land
- Tenure
- Freehold
- Council tax band
- N/A
This property is being sold by:

FG Auctions Worcester
01905 726220
Global House, Hindlip Lane, Worcester, WR3 8SB
†Traditional auction
Exchange occurs at the end of the auction. This means that if the reserve is met or exceeded and the auction timer reaches zero, the successful bidder is legally obliged to pay the purchase price and the seller will be legally obliged to sell the property. To ensure that the successful bidder proceeds, the buyer is automatically charged a holding deposit, which is held in a secure client account, pursuant to the terms of a holding deposit agreement.
* Pricing Information
The Guide Price amount specified is an indication of each seller's minimum expectation. It is not necessarily the amount at which the property will sell. Each property will be offered subject to a Reserve (a figure below which the property will not be sold) which we expect will be set no more than 10% above the Guide Price amount.
Bamboo Proptech and Fisher German Online Auction shall not be liable for any inaccuracies in the fees stated on this description page, in the bidding confirmation pop up or in the particulars. Buyers should check the contents of the legal pack and special conditions for accurate information on fees. Where there is a conflict between the fees stated in the particulars, the bid information box above or the bidding confirmation pop up and the contents of the legal pack, the contents of the legal pack shall prevail.
Stamp Duty Land Tax or Land and Buildings Transaction Tax may also apply in some circumstances.
Refreshing the Page
To make sure that you are seeing the latest information for the property, we recommend you refresh the page. This ensures you're seeing live information and not stored (cached) data. If the page disconnects from the Internet, refreshing the page will show the latest information.
Disclaimer
All information relating to this property, including descriptions, pictures and other related information has been provided by Fisher German Online Auction. All legal documents in relation to this property have been provided by the Vendor's solicitor. Neither Bamboo Proptech or any individual in employment with Bamboo Proptech makes any warranty as to the accuracy or completeness of any of the property information.
These particulars do not form part of any contract or offer. Buyers should not rely on them as statements of representation and should check that the information is correct by inspection or otherwise. Where there is a conflict between the contents of the legal documents and these particulars, the information contained in the legal documents shall prevail.
Pursuant to the Auctioneer Act 1845, this auction is being conducted by the auctioneer stated above. All participants in this online auction shall note that both the Auctions (Bidding Agreements) Act 1927 and 1969 shall apply.
Where stated in the bid box above, you agree that Bamboo may pre-authorise your card for the amount of the Buyer's fee and Deposit. You will only be charged if you are the winning buyer. We will release the pre-authorisation at the end of the auction. You card issuer may take up to 10 working days for this amount to be available to you in your account.





