A riverside apartment enjoying panoramic views directly across the river Dee, with parking, garaging and mooring .
Meadow View Sandy Lane, Cheshire, CH3 5UW
- 1
Key features
Guide Price: *
£440,000
Fees apply
Buyer's fee:£4,800
Admin fee:£2,400
Legal fee:£480
All fees include VAT at 20%
Auction Type:
† Traditional
Opening bid:
£440,000Bid history
0 bidsBy Online Auction 20th May 2026* A charming, freehold, riverside apartment enjoying panoramic views directly across the river Dee, with parking, garaging and mooring opportunities.
Description
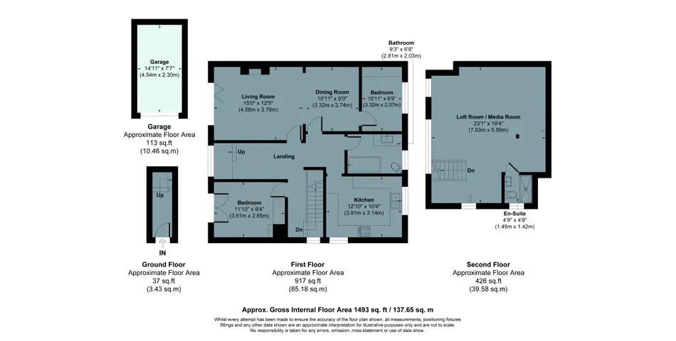
The apartment is entered via a private groundfloor reception hall, offering practical space for coats and footwear. From here, a turned staircase with an ornate castiron balustrade rises to the firstfloor landing, where there is ample room for a dedicated home study area.
The kitchen is appointed with a comprehensive range of fitted cabinets set beneath quartz work surfaces. High-quality integrated Neff and Miele appliances include an oven, hob and washer/dryer.
The spacious lounge features bifold doors opening to a Juliet balcony, framing exceptional river views across the Chester Meadows. An archway leads directly into a wellproportioned dining room, ideal for entertaining.
There are two bedrooms; the principal bedroom benefits from fitted wardrobes, while the second bedroom, currently used as a home office, is fitted with bespoke shelving and cabinetry.
The generous bathroom is fitted with a Jacuzzi whirlpool bath with shower over, a Villeroy & Boch vanity unit with wash basin, WC and a chrome heated towel rail.
An enclosed staircase rises to a substantial loft room, featuring a vaulted ceiling and Velux windows that enjoy spectacular river views. Most recently used as a TV and media lounge, the room is equipped with integrated surroundsound speakers and benefits from extensive eaves storage. An en suite wetroom style shower room completes this versatile and impressive space.
Gardens and grounds
This appealing apartment is approached through an attractive walled frontage, opening onto an extensive gravel courtyard that provides off-road parking. The property also enjoys the added advantage of a single garage.
To the rear, the beautifully maintained communal riverside gardens sweep down towards the riverbank, offering a serene and picturesque setting. At the foot of the garden, is a small wooden octagonal summer house, which was erected by the current owner, which offering a delightful spot from which to savour the tremendous, ever-changing river views.
Several neighbouring apartments benefit from boat moorings, with this privilege to be extended to the purchaser of this property, subject to the necessary arrangements.
Situation
Meadow View is situated in an elevated setting, having panoramic views directly over the river Dee, towards the Chester Meadows.
The historic Roman city of Chester is within a short walk and offers a comprehensive choice of amenities, whilst Boughton offer a broad choice of day-to-day amenities, including a Waitrose store, hairdressers, public houses and general stores.
On the recreational front, Chester offers a wealth of sports facilities, including golf, horse racing, rowing, sailing and canoeing.
The area is well-placed for commuting to the commercial centres of the northwest, with the M53 Junction 12 within 2 miles leading onto the M56 and M6. Chester station offers a direct service to London, Euston, within 2 hours.
Fixtures and fittings
All fixtures, fittings and furniture such as curtains, light fittings, garden ornaments and statuary are excluded from the sale.
Services
Mains water, gas, electricity, drainage are connected. None of the services, appliances, or electrical systems have been tested by the selling agents.
The estimated fastest download speed currently achievable for the property postcode area is around 2000 Mbps] (data taken from checker.ofcom.org.uk on 16/04/2026). Actual service availability at the property or speeds received may be different.
We understand that the property is likely to have current mobile coverage (data taken from checker.ofcom.org.uk on 16/04/2026). Please note that actual services available may be different depending on the particular circumstances, precise location and network outages.
Tenure
The property is to be sold freehold with vacant possession. The title describes the owner having an obligation to pay a quarter of the cost towards external maintenance of the building and garaging. The communal gardens and courtyard parking are unregistered common areas. Interested parties should review the legal pack for further details and take legal advice.
Local Authority
Cheshire West & Chester Council
Council Tax Band E
Public rights of way, wayleaves and easements
The property is sold subject to all rights of way, wayleaves and easements whether or not they are defined in this brochure.
Planning
The selling agents will not provide advice/guidance on the planning history for the property/land. Interested parties are advised to make their own investigations. It is assumed that enquiries have been satisfied, prior to an offer being made.
Anti Money Laundering Regulations (AML)
In accordance with Anti Money Laundering Regulations (AML), we are required to request forms of identification and carry out due diligence on any parties connected to a successful offer. Should an offer be made on behalf of a business/company, AML due diligence will also be necessary. Proof/source of funding must be supplied, prior to offer acceptance.
Method of sale
The property is offered for sale by online auction method however the vendor reserves the right to conclude the sale by an alternative method if required.
Plans and boundaries
The plans within these particulars are based on Ordnance Survey data and provided for reference only. They are believed to be correct but accuracy is not guaranteed. The purchaser shall be deemed to have full knowledge of all boundaries and the extent of ownership. Neither the vendor nor the vendor’s agents will be responsible for defining the boundaries or the ownership thereof.
Finance your purchase
If you require advice on how to finance a purchase through auction, please go to www.cherrystreetfinance.com our trusted partners, or ask our team for further details.
Important notices
This property is available for sale by online auction. Interested buyers will need to register in advance and complete an ID verification before being able to place a bid.
There is no charge for registering. Buyers should allow sufficient time to complete this process before the time period expires. Full details can be found on Fisher German’s online auction page www.fishergerman.co.uk/current-auctions
Legal pack
A legal pack and any special conditions will be available on Fisher German’s online auction page and interested parties will need to register before accessing the legal documents. It is the responsibility of a prospective purchaser to make all necessary enquiries prior to the auction.
Conditions of sale
The property will, unless previously withdrawn, be sold subject to common auction conditions and special conditions of each sale may be found in the legal documents section of the Fisher German online auction page. Each purchaser shall be deemed to have notice of each condition and all the terms thereof and to bid on those terms whether they shall have inspected the said conditions or not.
Completion
Completion will take place 20 working days after exchange of contracts, unless otherwise varied and specified in the legal pack.
Fees
The purchase of this property is subject to a combined buyer and admin fee of £7,200 including VAT as stated on the auction listing. The buyer will also be required to reimburse the search fees of £400 plus VAT.
Deposit
The full 10% deposit shall be transferred by the buyer to their solicitor for onward transmission by 12 noon the following working day to the seller’s lawyer. It is therefore essential that you instruct your solicitor ahead of the auction.
Viewings
Strictly by appointment through Fisher German LLP.
Directions
Postcode – CH3 5UW
what3words – ///anyone.beats.mason
Description
The apartment is entered via a private ground-floor reception hall, offering practical space for coats and footwear. From here, a turned staircase with an ornate cast-iron balustrade rises to the first floor landing, where there is ample room for a dedicated home study area. The kitchen is appointed with a comprehensive range of fitted cabinets set beneath quartz work surfaces. High-quality integrated Neff and Miele appliances include an oven, hob and washer/dryer. The spacious lounge features bifold doors opening to a Juliet balcony, framing exceptional river views across the Chester Meadows. An archway leads directly into a well-proportioned dining room, ideal for entertaining. There are two bedrooms; the principal bedroom benefits from fitted wardrobes, while the second bedroom, currently used as a home office, is fitted with bespoke shelving and cabinetry. The generous bathroom is fitted with a Jacuzzi whirlpool bath with shower over, a Villeroy & Boch vanity unit with wash basin, WC and a chrome heated towel rail. An enclosed staircase rises to a substantial loft room, featuring a vaulted ceiling and Velux windows that enjoy spectacular river views. Most recently used as a TV and media lounge, the room is equipped with integrated surround sound speakers and benefits from extensive eaves storage. An en suite wet room style shower room completes this versatile and impressive space.
Gardens and grounds
This appealing apartment is approached through an attractive walled frontage, opening onto an extensive gravel courtyard that provides off-road parking. The property also enjoys the added advantage of a single garage. To the rear, the beautifully maintained communal riverside gardens sweep down towards the riverbank, offering a serene and picturesque setting. At the foot of the garden, is a small wooden octagonal summer house, which was erected by the current owner, which offering a delightful spot from which to savour the tremendous, ever-changing river views. Several neighbouring apartments benefit from boat moorings, with this privilege to be extended to the purchaser of this property, subject to the necessary arrangements.
Situation
Meadow View is situated in an elevated setting, having panoramic views directly over the river Dee, towards the Chester Meadows. The historic Roman city of Chester is within a short walk and offers a comprehensive choice of amenities, whilst Boughton offer a broad choice of day-to-day amenities, including a Waitrose store, hairdressers, public houses and general stores. On the recreational front, Chester offers a wealth of sports facilities, including golf, horse racing, rowing, sailing and canoeing. The area is well-placed for commuting to the commercial centres of the northwest, with the M53 Junction 12 within 2 miles leading onto the M56 and M6. Chester station offers a direct service to London, Euston, within 2 hours.
Fixtures and fittings
All fixtures, fittings and furniture such as curtains, light fittings, garden ornaments and statuary are excluded from the sale.
Services
Mains water, gas, electricity, drainage are connected. None of the services, appliances, or electrical systems have been tested by the selling agents. The estimated fastest download speed currently achievable for the property postcode area is around 2000 Mbps] (data taken from checker.ofcom.org.uk on 16/04/2026). Actual service availability at the property or speeds received may be different. We understand that the property is likely to have current mobile coverage (data taken from checker.ofcom.org.uk on 16/04/2026). Please note that actual services available may be different depending on the particular circumstances, precise location and network outages.
Tenure
The property is to be sold freehold with vacant possession. The title describes the owner having an obligation to pay a quarter of the cost towards external maintenance of the building and garaging. The communal gardens and courtyard parking are unregistered common areas. Interested parties should review the legal pack for further details and take legal advice.
Local Authority
Cheshire West & Chester Council
Council Tax Band E
Public rights of way, wayleaves and easements
The property is sold subject to all rights of way, wayleaves and easements whether or not they are defined in this brochure.
Planning
The selling agents will not provide advice/guidance on the planning history for the property/land. Interested parties are advised to make their own investigations. It is assumed that enquiries have been satisfied, prior to an offer being made.
Anti Money Laundering Regulations (AML)
In accordance with Anti Money Laundering Regulations (AML), we are required to request forms of identification and carry out due diligence on any parties connected to a successful offer. Should an offer be made on behalf of a business/company, AML due diligence will also be necessary. Proof/source of funding must be supplied, prior to offer acceptance.
Method of sale
The property is offered for sale by online auction method however the vendor reserves the right to conclude the sale by an alternative method if required.
Plans and boundaries
The plans within these particulars are based on Ordnance Survey data and provided for reference only. They are believed to be correct but accuracy is not guaranteed. The purchaser shall be deemed to have full knowledge of all boundaries and the extent of ownership. Neither the vendor nor the vendor’s agents will be responsible for defining the boundaries or the ownership thereof.
Finance your purchase
If you require advice on how to finance a purchase through auction, please go to www.cherrystreetfinance.com our trusted partners, or ask our team for further details.
Important notices
This property is available for sale by online auction. Interested buyers will need to register in advance and complete an ID verification before being able to place a bid. There is no charge for registering. Buyers should allow sufficient time to complete this process before the time period expires. Full details can be found on Fisher German’s online auction page www.fishergerman.co.uk/current-auctions
Legal pack
A legal pack and any special conditions will be available on Fisher German’s online auction page and interested parties will need to register before accessing the legal documents. It is the responsibility of a prospective purchaser to make all necessary enquiries prior to the auction.
Conditions of sale
The property will, unless previously withdrawn, be sold subject to common auction conditions and special conditions of each sale may be found in the legal documents section of the Fisher German online auction page. Each purchaser shall be deemed to have notice of each condition and all the terms thereof and to bid on those terms whether they shall have inspected the said conditions or not.
Completion
Completion will take place 20 working days after exchange of contracts, unless otherwise varied and specified in the legal pack.
Fees
The purchase of this property is subject to a combined buyer and admin fee of £7,200 including VAT as stated on the auction listing. The buyer will also be required to reimburse the search fees of £400 plus VAT.
Deposit
The full 10% deposit shall be transferred by the buyer to their solicitor for onward transmission by 12 noon the following working day to the seller’s lawyer. It is therefore essential that you instruct your solicitor ahead of the auction.
Viewings
Strictly by appointment through Fisher German LLP.
Directions
Postcode – CH3 5UW what3words – ///anyone.beats.mason
By Online Auction 20th May 2026* A charming, freehold, riverside apartment enjoying panoramic views directly across the river Dee, with parking, garaging and mooring opportunities.
Description
The apartment is entered via a private groundfloor reception hall, offering practical space for coats and footwear. From here, a turned staircase with an ornate castiron balustrade rises to the firstfloor landing, where there is ample room for a dedicated home study area.
The kitchen is appointed with a comprehensive range of fitted cabinets set beneath quartz work surfaces. High-quality integrated Neff and Miele appliances include an oven, hob and washer/dryer.
The spacious lounge features bifold doors opening to a Juliet balcony, framing exceptional river views across the Chester Meadows. An archway leads directly into a wellproportioned dining room, ideal for entertaining.
There are two bedrooms; the principal bedroom benefits from fitted wardrobes, while the second bedroom, currently used as a home office, is fitted with bespoke shelving and cabinetry.
The generous bathroom is fitted with a Jacuzzi whirlpool bath with shower over, a Villeroy & Boch vanity unit with wash basin, WC and a chrome heated towel rail.
An enclosed staircase rises to a substantial loft room, featuring a vaulted ceiling and Velux windows that enjoy spectacular river views. Most recently used as a TV and media lounge, the room is equipped with integrated surroundsound speakers and benefits from extensive eaves storage. An en suite wetroom style shower room completes this versatile and impressive space.
Gardens and grounds
This appealing apartment is approached through an attractive walled frontage, opening onto an extensive gravel courtyard that provides off-road parking. The property also enjoys the added advantage of a single garage.
To the rear, the beautifully maintained communal riverside gardens sweep down towards the riverbank, offering a serene and picturesque setting. At the foot of the garden, is a small wooden octagonal summer house, which was erected by the current owner, which offering a delightful spot from which to savour the tremendous, ever-changing river views.
Several neighbouring apartments benefit from boat moorings, with this privilege to be extended to the purchaser of this property, subject to the necessary arrangements.
Situation
Meadow View is situated in an elevated setting, having panoramic views directly over the river Dee, towards the Chester Meadows.
The historic Roman city of Chester is within a short walk and offers a comprehensive choice of amenities, whilst Boughton offer a broad choice of day-to-day amenities, including a Waitrose store, hairdressers, public houses and general stores.
On the recreational front, Chester offers a wealth of sports facilities, including golf, horse racing, rowing, sailing and canoeing.
The area is well-placed for commuting to the commercial centres of the northwest, with the M53 Junction 12 within 2 miles leading onto the M56 and M6. Chester station offers a direct service to London, Euston, within 2 hours.
Fixtures and fittings
All fixtures, fittings and furniture such as curtains, light fittings, garden ornaments and statuary are excluded from the sale.
Services
Mains water, gas, electricity, drainage are connected. None of the services, appliances, or electrical systems have been tested by the selling agents.
The estimated fastest download speed currently achievable for the property postcode area is around 2000 Mbps] (data taken from checker.ofcom.org.uk on 16/04/2026). Actual service availability at the property or speeds received may be different.
We understand that the property is likely to have current mobile coverage (data taken from checker.ofcom.org.uk on 16/04/2026). Please note that actual services available may be different depending on the particular circumstances, precise location and network outages.
Tenure
The property is to be sold freehold with vacant possession. The title describes the owner having an obligation to pay a quarter of the cost towards external maintenance of the building and garaging. The communal gardens and courtyard parking are unregistered common areas. Interested parties should review the legal pack for further details and take legal advice.
Local Authority
Cheshire West & Chester Council
Council Tax Band E
Public rights of way, wayleaves and easements
The property is sold subject to all rights of way, wayleaves and easements whether or not they are defined in this brochure.
Planning
The selling agents will not provide advice/guidance on the planning history for the property/land. Interested parties are advised to make their own investigations. It is assumed that enquiries have been satisfied, prior to an offer being made.
Anti Money Laundering Regulations (AML)
In accordance with Anti Money Laundering Regulations (AML), we are required to request forms of identification and carry out due diligence on any parties connected to a successful offer. Should an offer be made on behalf of a business/company, AML due diligence will also be necessary. Proof/source of funding must be supplied, prior to offer acceptance.
Method of sale
The property is offered for sale by online auction method however the vendor reserves the right to conclude the sale by an alternative method if required.
Plans and boundaries
The plans within these particulars are based on Ordnance Survey data and provided for reference only. They are believed to be correct but accuracy is not guaranteed. The purchaser shall be deemed to have full knowledge of all boundaries and the extent of ownership. Neither the vendor nor the vendor’s agents will be responsible for defining the boundaries or the ownership thereof.
Finance your purchase
If you require advice on how to finance a purchase through auction, please go to www.cherrystreetfinance.com our trusted partners, or ask our team for further details.
Important notices
This property is available for sale by online auction. Interested buyers will need to register in advance and complete an ID verification before being able to place a bid.
There is no charge for registering. Buyers should allow sufficient time to complete this process before the time period expires. Full details can be found on Fisher German’s online auction page www.fishergerman.co.uk/current-auctions
Legal pack
A legal pack and any special conditions will be available on Fisher German’s online auction page and interested parties will need to register before accessing the legal documents. It is the responsibility of a prospective purchaser to make all necessary enquiries prior to the auction.
Conditions of sale
The property will, unless previously withdrawn, be sold subject to common auction conditions and special conditions of each sale may be found in the legal documents section of the Fisher German online auction page. Each purchaser shall be deemed to have notice of each condition and all the terms thereof and to bid on those terms whether they shall have inspected the said conditions or not.
Completion
Completion will take place 20 working days after exchange of contracts, unless otherwise varied and specified in the legal pack.
Fees
The purchase of this property is subject to a combined buyer and admin fee of £7,200 including VAT as stated on the auction listing. The buyer will also be required to reimburse the search fees of £400 plus VAT.
Deposit
The full 10% deposit shall be transferred by the buyer to their solicitor for onward transmission by 12 noon the following working day to the seller’s lawyer. It is therefore essential that you instruct your solicitor ahead of the auction.
Viewings
Strictly by appointment through Fisher German LLP.
Directions
Postcode – CH3 5UW
what3words – ///anyone.beats.mason
Description
The apartment is entered via a private ground-floor reception hall, offering practical space for coats and footwear. From here, a turned staircase with an ornate cast-iron balustrade rises to the first floor landing, where there is ample room for a dedicated home study area. The kitchen is appointed with a comprehensive range of fitted cabinets set beneath quartz work surfaces. High-quality integrated Neff and Miele appliances include an oven, hob and washer/dryer. The spacious lounge features bifold doors opening to a Juliet balcony, framing exceptional river views across the Chester Meadows. An archway leads directly into a well-proportioned dining room, ideal for entertaining. There are two bedrooms; the principal bedroom benefits from fitted wardrobes, while the second bedroom, currently used as a home office, is fitted with bespoke shelving and cabinetry. The generous bathroom is fitted with a Jacuzzi whirlpool bath with shower over, a Villeroy & Boch vanity unit with wash basin, WC and a chrome heated towel rail. An enclosed staircase rises to a substantial loft room, featuring a vaulted ceiling and Velux windows that enjoy spectacular river views. Most recently used as a TV and media lounge, the room is equipped with integrated surround sound speakers and benefits from extensive eaves storage. An en suite wet room style shower room completes this versatile and impressive space.
Gardens and grounds
This appealing apartment is approached through an attractive walled frontage, opening onto an extensive gravel courtyard that provides off-road parking. The property also enjoys the added advantage of a single garage. To the rear, the beautifully maintained communal riverside gardens sweep down towards the riverbank, offering a serene and picturesque setting. At the foot of the garden, is a small wooden octagonal summer house, which was erected by the current owner, which offering a delightful spot from which to savour the tremendous, ever-changing river views. Several neighbouring apartments benefit from boat moorings, with this privilege to be extended to the purchaser of this property, subject to the necessary arrangements.
Situation
Meadow View is situated in an elevated setting, having panoramic views directly over the river Dee, towards the Chester Meadows. The historic Roman city of Chester is within a short walk and offers a comprehensive choice of amenities, whilst Boughton offer a broad choice of day-to-day amenities, including a Waitrose store, hairdressers, public houses and general stores. On the recreational front, Chester offers a wealth of sports facilities, including golf, horse racing, rowing, sailing and canoeing. The area is well-placed for commuting to the commercial centres of the northwest, with the M53 Junction 12 within 2 miles leading onto the M56 and M6. Chester station offers a direct service to London, Euston, within 2 hours.
Fixtures and fittings
All fixtures, fittings and furniture such as curtains, light fittings, garden ornaments and statuary are excluded from the sale.
Services
Mains water, gas, electricity, drainage are connected. None of the services, appliances, or electrical systems have been tested by the selling agents. The estimated fastest download speed currently achievable for the property postcode area is around 2000 Mbps] (data taken from checker.ofcom.org.uk on 16/04/2026). Actual service availability at the property or speeds received may be different. We understand that the property is likely to have current mobile coverage (data taken from checker.ofcom.org.uk on 16/04/2026). Please note that actual services available may be different depending on the particular circumstances, precise location and network outages.
Tenure
The property is to be sold freehold with vacant possession. The title describes the owner having an obligation to pay a quarter of the cost towards external maintenance of the building and garaging. The communal gardens and courtyard parking are unregistered common areas. Interested parties should review the legal pack for further details and take legal advice.
Local Authority
Cheshire West & Chester Council
Council Tax Band E
Public rights of way, wayleaves and easements
The property is sold subject to all rights of way, wayleaves and easements whether or not they are defined in this brochure.
Planning
The selling agents will not provide advice/guidance on the planning history for the property/land. Interested parties are advised to make their own investigations. It is assumed that enquiries have been satisfied, prior to an offer being made.
Anti Money Laundering Regulations (AML)
In accordance with Anti Money Laundering Regulations (AML), we are required to request forms of identification and carry out due diligence on any parties connected to a successful offer. Should an offer be made on behalf of a business/company, AML due diligence will also be necessary. Proof/source of funding must be supplied, prior to offer acceptance.
Method of sale
The property is offered for sale by online auction method however the vendor reserves the right to conclude the sale by an alternative method if required.
Plans and boundaries
The plans within these particulars are based on Ordnance Survey data and provided for reference only. They are believed to be correct but accuracy is not guaranteed. The purchaser shall be deemed to have full knowledge of all boundaries and the extent of ownership. Neither the vendor nor the vendor’s agents will be responsible for defining the boundaries or the ownership thereof.
Finance your purchase
If you require advice on how to finance a purchase through auction, please go to www.cherrystreetfinance.com our trusted partners, or ask our team for further details.
Important notices
This property is available for sale by online auction. Interested buyers will need to register in advance and complete an ID verification before being able to place a bid. There is no charge for registering. Buyers should allow sufficient time to complete this process before the time period expires. Full details can be found on Fisher German’s online auction page www.fishergerman.co.uk/current-auctions
Legal pack
A legal pack and any special conditions will be available on Fisher German’s online auction page and interested parties will need to register before accessing the legal documents. It is the responsibility of a prospective purchaser to make all necessary enquiries prior to the auction.
Conditions of sale
The property will, unless previously withdrawn, be sold subject to common auction conditions and special conditions of each sale may be found in the legal documents section of the Fisher German online auction page. Each purchaser shall be deemed to have notice of each condition and all the terms thereof and to bid on those terms whether they shall have inspected the said conditions or not.
Completion
Completion will take place 20 working days after exchange of contracts, unless otherwise varied and specified in the legal pack.
Fees
The purchase of this property is subject to a combined buyer and admin fee of £7,200 including VAT as stated on the auction listing. The buyer will also be required to reimburse the search fees of £400 plus VAT.
Deposit
The full 10% deposit shall be transferred by the buyer to their solicitor for onward transmission by 12 noon the following working day to the seller’s lawyer. It is therefore essential that you instruct your solicitor ahead of the auction.
Viewings
Strictly by appointment through Fisher German LLP.
Directions
Postcode – CH3 5UW what3words – ///anyone.beats.mason
Summary
- Auction end
- 20th May at 11:00
- Property type
- Flat
- Tenure
- Freehold
- Bedrooms
- 2
- Bathrooms
- 2
- Council tax band
- E
Guide Price: *
£440,000
Fees apply
Buyer's fee:£4,800
Admin fee:£2,400
Legal fee:£480
All fees include VAT at 20%
Auction Type:
† Traditional
Opening bid:
£440,000Bid history
0 bidsSummary
- Auction end
- 20th May at 11:00
- Property type
- Flat
- Tenure
- Freehold
- Bedrooms
- 2
- Bathrooms
- 2
- Council tax band
- E
This property is being sold by:

FG Auctions Chester
01244 409660
International House, Kingsfield Court, Chester Business Park, Chester, CH4 9RE
†Traditional auction
Exchange occurs at the end of the auction. This means that if the reserve is met or exceeded and the auction timer reaches zero, the successful bidder is legally obliged to pay the purchase price and the seller will be legally obliged to sell the property. To ensure that the successful bidder proceeds, the buyer is automatically charged a holding deposit, which is held in a secure client account, pursuant to the terms of a holding deposit agreement.
* Pricing Information
The Guide Price amount specified is an indication of each seller's minimum expectation. It is not necessarily the amount at which the property will sell. Each property will be offered subject to a Reserve (a figure below which the property will not be sold) which we expect will be set no more than 10% above the Guide Price amount.
Bamboo Proptech and Fisher German Online Auction shall not be liable for any inaccuracies in the fees stated on this description page, in the bidding confirmation pop up or in the particulars. Buyers should check the contents of the legal pack and special conditions for accurate information on fees. Where there is a conflict between the fees stated in the particulars, the bid information box above or the bidding confirmation pop up and the contents of the legal pack, the contents of the legal pack shall prevail.
Stamp Duty Land Tax or Land and Buildings Transaction Tax may also apply in some circumstances.
Refreshing the Page
To make sure that you are seeing the latest information for the property, we recommend you refresh the page. This ensures you're seeing live information and not stored (cached) data. If the page disconnects from the Internet, refreshing the page will show the latest information.
Disclaimer
All information relating to this property, including descriptions, pictures and other related information has been provided by Fisher German Online Auction. All legal documents in relation to this property have been provided by the Vendor's solicitor. Neither Bamboo Proptech or any individual in employment with Bamboo Proptech makes any warranty as to the accuracy or completeness of any of the property information.
These particulars do not form part of any contract or offer. Buyers should not rely on them as statements of representation and should check that the information is correct by inspection or otherwise. Where there is a conflict between the contents of the legal documents and these particulars, the information contained in the legal documents shall prevail.
Pursuant to the Auctioneer Act 1845, this auction is being conducted by the auctioneer stated above. All participants in this online auction shall note that both the Auctions (Bidding Agreements) Act 1927 and 1969 shall apply.
Where stated in the bid box above, you agree that Bamboo may pre-authorise your card for the amount of the Buyer's fee and Deposit. You will only be charged if you are the winning buyer. We will release the pre-authorisation at the end of the auction. You card issuer may take up to 10 working days for this amount to be available to you in your account.
