Development Opportunity For 1 x 2 bedroom Dwelling
Land Adjacent to 1/1a The Hydneye, Eastbourne, BN22 9BU
- 2
Guide Price: *
£59,500
Fees apply
Reservation fee:2.40% (min. £7,200)
All fees include VAT at 20%
Auction Type:
† Conditional
Start price:
£59,500Bid history
0 bidsThis property is available via online auction, mortgage buyers & cash buyers welcome.
Please visit the Milestone website and via the main top menu click 'Online Auctions'
In order to bid first, register and verify your email.
Then, via the dashboard:
- pass an ID check
- enter your card details
DEVELOPMENT OPPORTUNITY – FOR SALE VIA ONLINE AUCTION
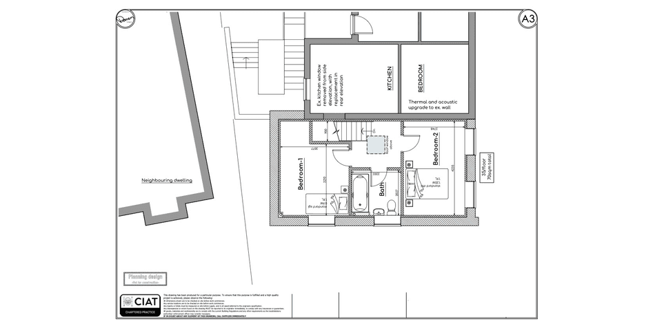
A unique opportunity to acquire a development site with full planning permission for the erection of a two-bedroom dwelling measuring approximately 85m². The site presents an excellent investment opportunity, with a Gross Development Value (GDV) of £260,000 and a Community Infrastructure Levy (CIL) liability of £4,500.
Key Details:
Planning Application: 230246 (Valid from 04/04/2023)
Approved Development: 1 x 2-bedroom dwelling (Approx. 85m²)
CIL Liability: £4,500
GDV: £260,000
This property is available via online auction, welcoming both mortgage and cash buyers.
How to Register and Bid:
Interested buyers should visit the Milestone website and select ‘Online Auctions’ from the top menu. To participate in the auction, bidders must:
Register and verify their email
Complete an ID check via the dashboard
Enter their card details for verification
For further details or to arrange a site visit, please contact us today.
Don’t miss out on this fantastic investment opportunity!
This property is available via online auction, mortgage buyers & cash buyers welcome.
Please visit the Milestone website and via the main top menu click 'Online Auctions'
In order to bid first, register and verify your email.
Then, via the dashboard:
- pass an ID check
- enter your card details
DEVELOPMENT OPPORTUNITY – FOR SALE VIA ONLINE AUCTION
A unique opportunity to acquire a development site with full planning permission for the erection of a two-bedroom dwelling measuring approximately 85m². The site presents an excellent investment opportunity, with a Gross Development Value (GDV) of £260,000 and a Community Infrastructure Levy (CIL) liability of £4,500.
Key Details:
Planning Application: 230246 (Valid from 04/04/2023)
Approved Development: 1 x 2-bedroom dwelling (Approx. 85m²)
CIL Liability: £4,500
GDV: £260,000
This property is available via online auction, welcoming both mortgage and cash buyers.
How to Register and Bid:
Interested buyers should visit the Milestone website and select ‘Online Auctions’ from the top menu. To participate in the auction, bidders must:
Register and verify their email
Complete an ID check via the dashboard
Enter their card details for verification
For further details or to arrange a site visit, please contact us today.
Don’t miss out on this fantastic investment opportunity!
Summary
- Lot number
- 232334
- Property type
- Land
- Tenure
- Freehold
- Council tax band
- N/A
Guide Price: *
£59,500
Fees apply
Reservation fee:2.40% (min. £7,200)
All fees include VAT at 20%
Auction Type:
† Conditional
Start price:
£59,500Bid history
0 bidsSummary
- Lot number
- 232334
- Property type
- Land
- Tenure
- Freehold
- Council tax band
- N/A
This property is being sold by:

Head Office
07931250707
39-41 Seaside Eastbourne East Sussex BN22 7NB
†Conditional auction
If the reserve is met or exceeded and the auction timer reaches zero, an exclusivity period begins in relation to that property. The successful bidder is contractually required to exchange on the property on or before the expiry of 20 working days from the end of the auction (unless otherwise stated in the "Other Key Info" section in the listing above). All properties sold by conditional auction are sold subject to a reservation fee which is clearly stated in the terms and conditions attached to the property and in the bidding box before a bid is placed. The reservation fee is payable in addition to the final purchase price and is received on a non-refundable basis, subject to the terms of the Reservation Agreement. To ensure that the successful bidder proceeds, the winning buyer is automatically charged a reservation fee and agrees prior to making their bid, to pay any outstanding amount of the property reservation fee immediately at the end of the auction. The auctioneer will be authorised to sign the reservation agreement on both the buyer’s and seller’s behalf. If by the seller’s act, exchange does not occur on or before the expiry of 20 working days from the end of the auction (unless otherwise stated in the "Other Key Info" section in the listing above), the reservation fee shall be fully refunded to the buyer. If the buyer fails to exchange on or before the expiry of 20 working days from the end of the auction (unless otherwise stated in the "Other Key Info" section in the listing above), they will forfeit the full amount of the reservation fee.Fees paid to the Auctioneer may be considered as part of the chargeable consideration for the property and be included in the calculation for stamp duty liability. Further clarification on this must be sought from your legal representative.
* Pricing Information
The Guide Price amount specified is an indication of each seller's minimum expectation. It is not necessarily the amount at which the property will sell. Each property will be offered subject to a Reserve (a figure below which the property will not be sold) which we expect will be set no more than 10% above the Guide Price amount.
Bamboo Proptech and Milestone Sales & Lettings shall not be liable for any inaccuracies in the fees stated on this description page, in the bidding confirmation pop up or in the particulars. Buyers should check the contents of the legal pack and special conditions for accurate information on fees. Where there is a conflict between the fees stated in the particulars, the bid information box above or the bidding confirmation pop up and the contents of the legal pack, the contents of the legal pack shall prevail.
Stamp Duty Land Tax or Land and Buildings Transaction Tax may also apply in some circumstances.
Refreshing the Page
To make sure that you are seeing the latest information for the property, we recommend you refresh the page. This ensures you're seeing live information and not stored (cached) data. If the page disconnects from the Internet, refreshing the page will show the latest information.
Disclaimer
All information relating to this property, including descriptions, pictures and other related information has been provided by Milestone Sales & Lettings. All legal documents in relation to this property have been provided by the Vendor's solicitor. Neither Bamboo Proptech or any individual in employment with Bamboo Proptech makes any warranty as to the accuracy or completeness of any of the property information.
These particulars do not form part of any contract or offer. Buyers should not rely on them as statements of representation and should check that the information is correct by inspection or otherwise. Where there is a conflict between the contents of the legal documents and these particulars, the information contained in the legal documents shall prevail.
Pursuant to the Auctioneer Act 1845, this auction is being conducted by the auctioneer stated above. All participants in this online auction shall note that both the Auctions (Bidding Agreements) Act 1927 and 1969 shall apply.
Where stated in the bid box above, you agree that Bamboo may pre-authorise your card for the amount of the Buyer's fee and Deposit. You will only be charged if you are the winning buyer. We will release the pre-authorisation at the end of the auction. You card issuer may take up to 10 working days for this amount to be available to you in your account.




