Development Opportunity- Ayshford Arms
Ayshford Arms, , Tiverton, EX167JN
- 3
Key features
Guide Price: *
£365,000
Fees apply
Buyer's fee:£3,600
All fees include VAT at 20%
Holding Deposit: *£1,400
*Only charged if you are the successful buyer and goes towards the purchase price
Auction Type:
† Traditional
Opening bid:
£365,000Bid history
0 bidsLOCATION
The village of Burlescombe is located within the administrative area of Mid Devon District Council (MDDC). It lies approximately 11.1-kilometres (6.9-miles) south-west of Wellington and approximately 18.8-kilometres (11.7-miles) north-east of Tiverton. It is situated close to the Devon/Somerset border and is surrounded by open countryside.
Burlescombe has a basic range of facilities and amenities including (but not limited to):- a primary school, a village hall and a church (St Mary’s). The site falls within the Uffculme School catchment area, a well-regarded secondary school within the region.
The nearby village of Uffculme has an extensive range of community facilities and amenities including (but not limited to):- a surgery, a public house, a fish and chip shop and a parish pavilion. The village has an array of local clubs and activities and prides itself on a thriving community spirit.
Burlescombe benefits from close links to the market town of Wellington has a comprehensive range of ecclesiastical, recreational, educational, employment, leisure/tourism and shopping facilities (Waitrose, Asda and Lidl), including primary and secondary schools, places of worship, a number of public houses and community medical centre.
It is situated on the edge of the Blackdown Hills Area of Outstanding Natural Beauty (AONB), which is approximately 3.5-kilometres (2.2-miles) to the east. It is famous for its beautiful viewing spots and spectacular country walks.
COMMUNICATIONS
Road - Burlescombe is approximately 1.6-kilometres (1-mile) west of the A38. This links north to Wellington and south to the A361 and Junction 27 of the M5 motorway. This provides access north to Taunton, Bridgwater and Bristol and south to Cullompton and Exeter.
Rail - Tiverton Parkway railway station is approximately 9.2-kilometres (5.7-miles) to the south-east. It offers mainline services to destinations such as Exeter St Davids, Bristol Temple Meads and London Paddington.
Air - Exeter Airport is approximately 33.8-kilometres (21-miles) to the south and Bristol Airport lies approximately 82.9-kilometres (51.5-miles) to the north-east. Both offer scheduled flights to a range of national and international destinations.
SITE
The site is situated in a prominent position fronting Station Road within the centre of Burlescombe.
It comprises the former Ayshford Arms and benefits from a large hardstanding area to the rear, which formerly served as a car park.
The existing building is a detached 2no. storey former public house of traditional construction with render elevations under a pitched tiled roof. To the side of the building is a skittle alley and single-storey extension, both of which are proposed to be demolished as part of the approved scheme. The demolition of these structures will facilitate the creation of private gardens for each of the proposed dwellings.
The site is bound by residential dwellings and agricultural land beyond to the north and east; the railway line to the south; and Station Road and residential dwellings to the west.
It extends, in total, to approximately 0.22-hectares (0.54-acres). The site being offered for sale is shown outlined red on the site plan. It is shown for identification purposes only and is not to be relied upon.
DETAILED PLANNING PERMISSION
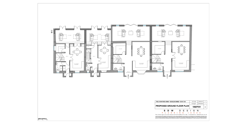
MDDC, on 7th February 2025, granted detailed planning permission (DPP) (application number: 24/01277/FULL) for the change of use the former public house to create 4no. residential dwellings (all open market). The permission is subject to 9no. conditions.
PROPOSED RESIDENTIAL DEVELOPMENT SCHEME
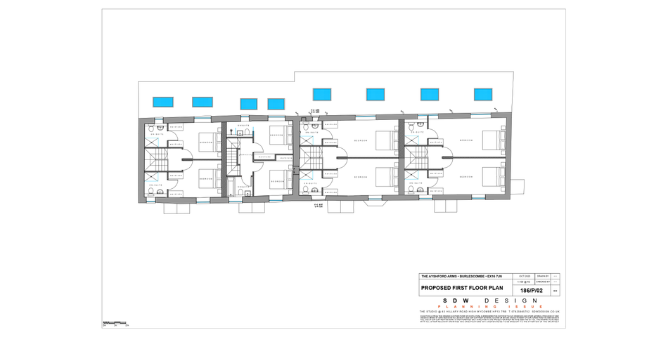
The proposed residential development scheme (PRDS) comprises 4no. 2-bed dwellings (all open market). Each unit will benefit from private garden space and off-street parking. The dwellings will provide open-plan kitchen, dining and living areas on the ground floor and two bedrooms and bathrooms on the first floor.
The PRDS will be accessed via Station Road, with dedicated parking spaces provided to the rear of the properties.
SECTION 106 AGREEMENT
We understand the threshold for Section 106 Agreement contributions has not been met by the DPP; therefore, there will not be any contributions.
COMMUNITY INFRASTRUCTURE LEVY
We understand that MDDC does not currently operate a Community Infrastructure Levy (CIL) charging schedule and therefore CIL is not applicable to this development.
LOCAL AUTHORITY
Mid Devon District Council
Phoenix House
Phoenix Lane
Tiverton
Devon
EX16 6PP
T: 01884 255255
TENURE AND POSSESSION
The seller owns the freehold (title absolute) of the site being offered for sale. It is registered with the Land Registry under title number: DN215904.
Method of Sale
The property will be offered for sale by online unconditional auction: www.gth.net/auctions/property/onlineauctions due to end Tuesday 4th November 2025 at 12 noon.
The guide price is in the region of £365,000.
VALUE ADDED TAX
The seller will not opt to tax; therefore, VAT will not be payable in addition to the purchase price.
All interested parties should make their own enquiries with HMRC.
RIGHTS OF WAY, WAYLEAVES AND EASEMENTS
The sale is subject to all rights of support, public and private rights of way, water, light, drainage and other easements, quasi-easements, all or any other like rights, whether mentioned in these particulars or not.
Please note that there is a public right of way traversing the site on the south-west to south-eastern boundary.
SERVICES
All mains services are available near or on the site, with the exception of gas. All interested parties should make their own enquiries with the Statutory Utility Providers.
ADDITIONAL INFORMATION
The information pack is available, via the link, set out below:-
VIEWINGS
All viewings are strictly by appointment.
HEALTH AND SAFETY POLICY
Our Health and Safety policy requires all interested parties undertaking viewings of this site to be accompanied by a member of our staff. They must wear their own Personal Protection Equipment (PPE). If interested parties do not adhere to our policy and view the site unaccompanied or without PPE then they do so at their own risk and we/the seller cannot be held liable for any personal injury or associated claim for compensation.
DIRECTIONS
Sat Nav: EX16 7JN
What3words: attending.crunchy.replying
From Junction 27 of the M5 motorway, take the A361 signposted Tiverton. After approximately 0.5-kilometres (0.3-miles), take the first right signposted to Burlescombe. Continue along the road for approximately 6.1-kilometres (3.8-miles). Upon entering the village of Burlescombe, continue along Station Road for approximately 0.8-kilometres (0.5-miles). The site will be found on the left-hand side, identified by a Greenslade Taylor Hunt sale board.
PLANNING
Our Planning department will be delighted to provide prospective buyers with planning advice. The department’s telephone number is: (01823) 334466 and its email address is: landplanning.taunton@gth.net.
Our Planning Service brochure is available via the link, set out below:-
GTH Planning Services
NEW HOMES
Our New Homes department will be delighted to provide prospective buyers with its opinion of the likely Gross Development Value of the PRDS and advice on marketing the new homes. The department’s telephone number is: (01823) 334466 and its email address is: owen.setter@gth.net.
Our New Homes Service brochure is available via the link, set out below:-
New Homes with GTH
PROPERTY MANAGEMENT
Our Property Management department will be delighted to provide prospective buyers with advice on the on-going management of the properties once built. The department’s telephone number is (01823) 348899 and its email address is: chris.holt@gth.net.
Our Property Management Service brochure is available via the link, set out below:-
Property Management
IMPORTANT NOTICE
Greenslade Taylor Hunt, their clients and any joint agents give notice that:-
1. They are not authorised to make or give any representations or warranties in relation to the property either here or elsewhere, either on their own behalf or on behalf of their client or otherwise.
They assume no responsibility for any statement that may be made in these particulars. These particulars do not form part of any offer or contract and must not be relied upon as statements or representations of fact.
2. Any areas, measurements or distances are approximate. The text, photographs and plans are for guidance only and are not necessarily comprehensive. It should not be assumed that the property has all necessary planning, building regulation or other consents and Greenslade Taylor Hunt has not tested any services, equipment or facilities. Purchasers must satisfy themselves by inspection or otherwise.
3. We have not made any investigations into the existence or otherwise of any issues concerning pollution of land, air or water contamination and the purchaser is responsible for making his own enquiries in this regard.
Photographs taken April 2025 / Sales Brochure prepared April 2025
Property Reference Number: TIV250049
LOCATION
The village of Burlescombe is located within the administrative area of Mid Devon District Council (MDDC). It lies approximately 11.1-kilometres (6.9-miles) south-west of Wellington and approximately 18.8-kilometres (11.7-miles) north-east of Tiverton. It is situated close to the Devon/Somerset border and is surrounded by open countryside.
Burlescombe has a basic range of facilities and amenities including (but not limited to):- a primary school, a village hall and a church (St Mary’s). The site falls within the Uffculme School catchment area, a well-regarded secondary school within the region.
The nearby village of Uffculme has an extensive range of community facilities and amenities including (but not limited to):- a surgery, a public house, a fish and chip shop and a parish pavilion. The village has an array of local clubs and activities and prides itself on a thriving community spirit.
Burlescombe benefits from close links to the market town of Wellington has a comprehensive range of ecclesiastical, recreational, educational, employment, leisure/tourism and shopping facilities (Waitrose, Asda and Lidl), including primary and secondary schools, places of worship, a number of public houses and community medical centre.
It is situated on the edge of the Blackdown Hills Area of Outstanding Natural Beauty (AONB), which is approximately 3.5-kilometres (2.2-miles) to the east. It is famous for its beautiful viewing spots and spectacular country walks.
COMMUNICATIONS
Road - Burlescombe is approximately 1.6-kilometres (1-mile) west of the A38. This links north to Wellington and south to the A361 and Junction 27 of the M5 motorway. This provides access north to Taunton, Bridgwater and Bristol and south to Cullompton and Exeter.
Rail - Tiverton Parkway railway station is approximately 9.2-kilometres (5.7-miles) to the south-east. It offers mainline services to destinations such as Exeter St Davids, Bristol Temple Meads and London Paddington.
Air - Exeter Airport is approximately 33.8-kilometres (21-miles) to the south and Bristol Airport lies approximately 82.9-kilometres (51.5-miles) to the north-east. Both offer scheduled flights to a range of national and international destinations.
SITE
The site is situated in a prominent position fronting Station Road within the centre of Burlescombe.
It comprises the former Ayshford Arms and benefits from a large hardstanding area to the rear, which formerly served as a car park.
The existing building is a detached 2no. storey former public house of traditional construction with render elevations under a pitched tiled roof. To the side of the building is a skittle alley and single-storey extension, both of which are proposed to be demolished as part of the approved scheme. The demolition of these structures will facilitate the creation of private gardens for each of the proposed dwellings.
The site is bound by residential dwellings and agricultural land beyond to the north and east; the railway line to the south; and Station Road and residential dwellings to the west.
It extends, in total, to approximately 0.22-hectares (0.54-acres). The site being offered for sale is shown outlined red on the site plan. It is shown for identification purposes only and is not to be relied upon.
DETAILED PLANNING PERMISSION
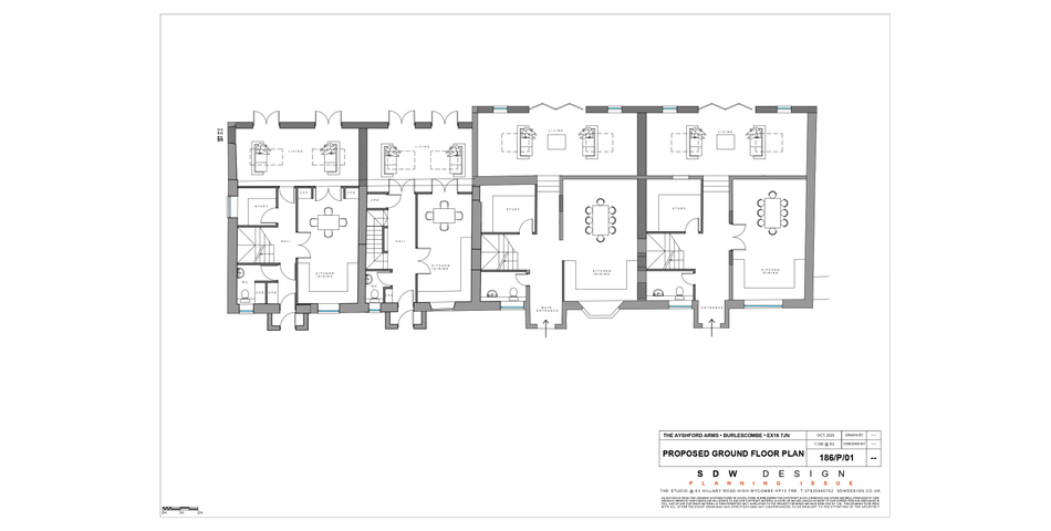
MDDC, on 7th February 2025, granted detailed planning permission (DPP) (application number: 24/01277/FULL) for the change of use the former public house to create 4no. residential dwellings (all open market). The permission is subject to 9no. conditions.
PROPOSED RESIDENTIAL DEVELOPMENT SCHEME
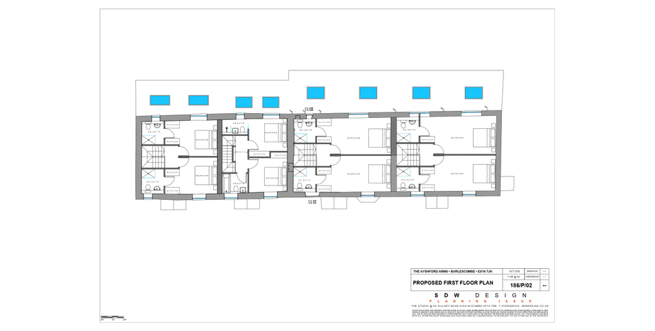
The proposed residential development scheme (PRDS) comprises 4no. 2-bed dwellings (all open market). Each unit will benefit from private garden space and off-street parking. The dwellings will provide open-plan kitchen, dining and living areas on the ground floor and two bedrooms and bathrooms on the first floor.
The PRDS will be accessed via Station Road, with dedicated parking spaces provided to the rear of the properties.
SECTION 106 AGREEMENT
We understand the threshold for Section 106 Agreement contributions has not been met by the DPP; therefore, there will not be any contributions.
COMMUNITY INFRASTRUCTURE LEVY
We understand that MDDC does not currently operate a Community Infrastructure Levy (CIL) charging schedule and therefore CIL is not applicable to this development.
LOCAL AUTHORITY
Mid Devon District Council
Phoenix House
Phoenix Lane
Tiverton
Devon
EX16 6PP
T: 01884 255255
TENURE AND POSSESSION
The seller owns the freehold (title absolute) of the site being offered for sale. It is registered with the Land Registry under title number: DN215904.
Method of Sale
The property will be offered for sale by online unconditional auction: www.gth.net/auctions/property/onlineauctions due to end Tuesday 4th November 2025 at 12 noon.
The guide price is in the region of £365,000.
VALUE ADDED TAX
The seller will not opt to tax; therefore, VAT will not be payable in addition to the purchase price.
All interested parties should make their own enquiries with HMRC.
RIGHTS OF WAY, WAYLEAVES AND EASEMENTS
The sale is subject to all rights of support, public and private rights of way, water, light, drainage and other easements, quasi-easements, all or any other like rights, whether mentioned in these particulars or not.
Please note that there is a public right of way traversing the site on the south-west to south-eastern boundary.
SERVICES
All mains services are available near or on the site, with the exception of gas. All interested parties should make their own enquiries with the Statutory Utility Providers.
ADDITIONAL INFORMATION
The information pack is available, via the link, set out below:-
VIEWINGS
All viewings are strictly by appointment.
HEALTH AND SAFETY POLICY
Our Health and Safety policy requires all interested parties undertaking viewings of this site to be accompanied by a member of our staff. They must wear their own Personal Protection Equipment (PPE). If interested parties do not adhere to our policy and view the site unaccompanied or without PPE then they do so at their own risk and we/the seller cannot be held liable for any personal injury or associated claim for compensation.
DIRECTIONS
Sat Nav: EX16 7JN
What3words: attending.crunchy.replying
From Junction 27 of the M5 motorway, take the A361 signposted Tiverton. After approximately 0.5-kilometres (0.3-miles), take the first right signposted to Burlescombe. Continue along the road for approximately 6.1-kilometres (3.8-miles). Upon entering the village of Burlescombe, continue along Station Road for approximately 0.8-kilometres (0.5-miles). The site will be found on the left-hand side, identified by a Greenslade Taylor Hunt sale board.
PLANNING
Our Planning department will be delighted to provide prospective buyers with planning advice. The department’s telephone number is: (01823) 334466 and its email address is: landplanning.taunton@gth.net.
Our Planning Service brochure is available via the link, set out below:-
GTH Planning Services
NEW HOMES
Our New Homes department will be delighted to provide prospective buyers with its opinion of the likely Gross Development Value of the PRDS and advice on marketing the new homes. The department’s telephone number is: (01823) 334466 and its email address is: owen.setter@gth.net.
Our New Homes Service brochure is available via the link, set out below:-
New Homes with GTH
PROPERTY MANAGEMENT
Our Property Management department will be delighted to provide prospective buyers with advice on the on-going management of the properties once built. The department’s telephone number is (01823) 348899 and its email address is: chris.holt@gth.net.
Our Property Management Service brochure is available via the link, set out below:-
Property Management
IMPORTANT NOTICE
Greenslade Taylor Hunt, their clients and any joint agents give notice that:-
1. They are not authorised to make or give any representations or warranties in relation to the property either here or elsewhere, either on their own behalf or on behalf of their client or otherwise.
They assume no responsibility for any statement that may be made in these particulars. These particulars do not form part of any offer or contract and must not be relied upon as statements or representations of fact.
2. Any areas, measurements or distances are approximate. The text, photographs and plans are for guidance only and are not necessarily comprehensive. It should not be assumed that the property has all necessary planning, building regulation or other consents and Greenslade Taylor Hunt has not tested any services, equipment or facilities. Purchasers must satisfy themselves by inspection or otherwise.
3. We have not made any investigations into the existence or otherwise of any issues concerning pollution of land, air or water contamination and the purchaser is responsible for making his own enquiries in this regard.
Photographs taken April 2025 / Sales Brochure prepared April 2025
Property Reference Number: TIV250049
Summary
- Auction end
- 4th Feb at 12:00
- Property type
- Residential
- Tenure
- Freehold
- Bedrooms
- 8
- Bathrooms
- 4
- Council tax band
- Ask Agent
Guide Price: *
£365,000
Fees apply
Buyer's fee:£3,600
All fees include VAT at 20%
Holding Deposit: *£1,400
*Only charged if you are the successful buyer and goes towards the purchase price
Auction Type:
† Traditional
Opening bid:
£365,000Bid history
0 bidsSummary
- Auction end
- 4th Feb at 12:00
- Property type
- Residential
- Tenure
- Freehold
- Bedrooms
- 8
- Bathrooms
- 4
- Council tax band
- Ask Agent
This property is being sold by:

Greenslade Taylor Hunt - Tiverton
01884 243000
5 Fore Street, Tiverton, Devon, EX16 6LN
†Traditional auction
Exchange occurs at the end of the auction. This means that if the reserve is met or exceeded and the auction timer reaches zero, the successful bidder is legally obliged to pay the purchase price and the seller will be legally obliged to sell the property. To ensure that the successful bidder proceeds, the buyer is automatically charged a holding deposit, which is held in a secure client account, pursuant to the terms of a holding deposit agreement.
* Pricing Information
The Guide Price amount specified is an indication of each seller's minimum expectation. It is not necessarily the amount at which the property will sell. Each property will be offered subject to a Reserve (a figure below which the property will not be sold) which we expect will be set no more than 10% above the Guide Price amount.
Bamboo Proptech and GTH Online Auction shall not be liable for any inaccuracies in the fees stated on this description page, in the bidding confirmation pop up or in the particulars. Buyers should check the contents of the legal pack and special conditions for accurate information on fees. Where there is a conflict between the fees stated in the particulars, the bid information box above or the bidding confirmation pop up and the contents of the legal pack, the contents of the legal pack shall prevail.
Stamp Duty Land Tax or Land and Buildings Transaction Tax may also apply in some circumstances.
Refreshing the Page
To make sure that you are seeing the latest information for the property, we recommend you refresh the page. This ensures you're seeing live information and not stored (cached) data. If the page disconnects from the Internet, refreshing the page will show the latest information.
Disclaimer
All information relating to this property, including descriptions, pictures and other related information has been provided by GTH Online Auction. All legal documents in relation to this property have been provided by the Vendor's solicitor. Neither Bamboo Proptech or any individual in employment with Bamboo Proptech makes any warranty as to the accuracy or completeness of any of the property information.
These particulars do not form part of any contract or offer. Buyers should not rely on them as statements of representation and should check that the information is correct by inspection or otherwise. Where there is a conflict between the contents of the legal documents and these particulars, the information contained in the legal documents shall prevail.
Pursuant to the Auctioneer Act 1845, this auction is being conducted by the auctioneer stated above. All participants in this online auction shall note that both the Auctions (Bidding Agreements) Act 1927 and 1969 shall apply.
Where stated in the bid box above, you agree that Bamboo may pre-authorise your card for the amount of the Buyer's fee and Deposit. You will only be charged if you are the winning buyer. We will release the pre-authorisation at the end of the auction. You card issuer may take up to 10 working days for this amount to be available to you in your account.


