BUILDING PLOT - 0.07 HECTARES
Building Plot, adjacent to Archer Cottage, Manchester, M24 4AB
- 17
Guide Price: *
£100,000
Fees apply
Buyer's fee:£2,400
All fees include VAT at 20%
Holding Deposit: *£2,600
*Only charged if you are the successful buyer and goes towards the purchase price
Auction Type:
† Traditional
Sold for:
£126,000Bid history
32 bidsTThis is an automatic bid as the bidder has set a maximum bid for this lot
14/03/2022 15:33:41 - £126,000
M
14/03/2022 15:33:41 - £126,000
TThis is an automatic bid as the bidder has set a maximum bid for this lot
14/03/2022 15:29:12 - £125,000
See all 32 bids ▾
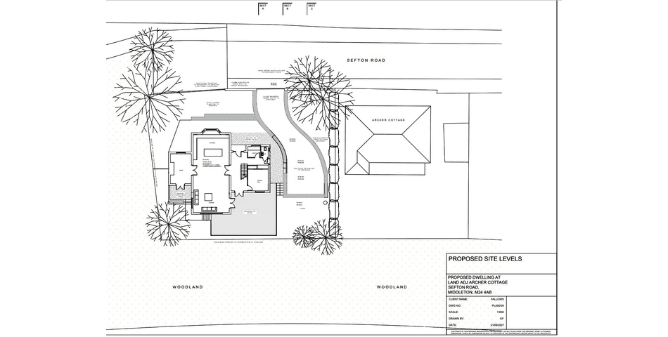
Hunters are pleased to offer this parcel of land in the Archer Park Area of Middleton. The land is approximately 0.07 hectares and has current planning permission for a three bedroom dwelling. Land drains are already in place.
Planning permission granted (June 2021) for the erection of one three-bedroom detached dwelling with decking to the rear and associated access, parking and landscaping. Please review the legal pack for a copy of the granted planning permission by Rochdale Borough Council.
NOTE FOR BUYERS:
Traditional Online Auction Information
Please note: this property is for sale by traditional online auction. This means that exchange will occur when the online timer reaches zero (provided the seller's reserve price has been met or exceeded). The winning buyer will be legally obliged to purchase the property at their highest bid price.
Fees:
On Exchange of contracts, the buyer must pay 10% towards the purchase price of property. £2,600 of this 10% is charged immediately online, with the remainder payable by 12pm the next business day.
There is an additional buyer premium of £2,400 (incl. VAT) which will be charged immediately online.
Pricing Information:
The Guide Price amount specified is an indication of each seller's minimum expectation. It is not necessarily the amount at which the property will sell. Each property will be offered subject to a Reserve (a figure below which the property will not be sold) which we expect will be set no more than 10% above the Guide Price amount.
Hunters and Bamboo Auctions shall not be liable for any inaccuracies in the fees stated on this description page, in the bidding confirmation pop up or in the particulars. Buyers should check the contents of the legal pack and special conditions for accurate information on fees. Where there is a conflict between the fees stated in the particulars, the bid information box or the bidding confirmation pop up and the contents of the legal pack, the contents of the legal pack shall prevail. Stamp Duty Land Tax or Land and Buildings Transaction Tax may also apply in some circumstances.
Exchange takes place instantly and the successful buyer has 28 days to complete the purchase.
Hunters are pleased to offer this parcel of land in the Archer Park Area of Middleton. The land is approximately 0.07 hectares and has current planning permission for a three bedroom dwelling. Land drains are already in place.
Planning permission granted (June 2021) for the erection of one three-bedroom detached dwelling with decking to the rear and associated access, parking and landscaping. Please review the legal pack for a copy of the granted planning permission by Rochdale Borough Council.
NOTE FOR BUYERS:
Traditional Online Auction Information
Please note: this property is for sale by traditional online auction. This means that exchange will occur when the online timer reaches zero (provided the seller's reserve price has been met or exceeded). The winning buyer will be legally obliged to purchase the property at their highest bid price.
Fees:
On Exchange of contracts, the buyer must pay 10% towards the purchase price of property. £2,600 of this 10% is charged immediately online, with the remainder payable by 12pm the next business day.
There is an additional buyer premium of £2,400 (incl. VAT) which will be charged immediately online.
Pricing Information:
The Guide Price amount specified is an indication of each seller's minimum expectation. It is not necessarily the amount at which the property will sell. Each property will be offered subject to a Reserve (a figure below which the property will not be sold) which we expect will be set no more than 10% above the Guide Price amount.
Hunters and Bamboo Auctions shall not be liable for any inaccuracies in the fees stated on this description page, in the bidding confirmation pop up or in the particulars. Buyers should check the contents of the legal pack and special conditions for accurate information on fees. Where there is a conflict between the fees stated in the particulars, the bid information box or the bidding confirmation pop up and the contents of the legal pack, the contents of the legal pack shall prevail. Stamp Duty Land Tax or Land and Buildings Transaction Tax may also apply in some circumstances.
Exchange takes place instantly and the successful buyer has 28 days to complete the purchase.
Summary
- Auction end
- 14th Mar at 15:38
- Property type
- Residential
- Tenure
- Ask Agent
- Bedrooms
- 0
- Bathrooms
- 0
- Council tax band
- Ask Agent
Guide Price: *
£100,000
Fees apply
Buyer's fee:£2,400
All fees include VAT at 20%
Holding Deposit: *£2,600
*Only charged if you are the successful buyer and goes towards the purchase price
Auction Type:
† Traditional
Sold for:
£126,000Bid history
32 bidsTThis is an automatic bid as the bidder has set a maximum bid for this lot
14/03/2022 15:33:41 - £126,000
M
14/03/2022 15:33:41 - £126,000
TThis is an automatic bid as the bidder has set a maximum bid for this lot
14/03/2022 15:29:12 - £125,000
See all 32 bids ▾
Summary
- Auction end
- 14th Mar at 15:38
- Property type
- Residential
- Tenure
- Ask Agent
- Bedrooms
- 0
- Bathrooms
- 0
- Council tax band
- Ask Agent
This property is being sold by:

Hunters Auction
01904 756116
Apollo House, Eboracum Way, York, YO31 7RE
†Traditional auction
Exchange occurs at the end of the auction. This means that if the reserve is met or exceeded and the auction timer reaches zero, the successful bidder is legally obliged to pay the purchase price and the seller will be legally obliged to sell the property. To ensure that the successful bidder proceeds, the buyer is automatically charged a holding deposit, which is held in a secure client account, pursuant to the terms of a holding deposit agreement.
* Pricing Information
The Guide Price amount specified is an indication of each seller's minimum expectation. It is not necessarily the amount at which the property will sell. Each property will be offered subject to a Reserve (a figure below which the property will not be sold) which we expect will be set no more than 10% above the Guide Price amount.
Bamboo Proptech and Hunters shall not be liable for any inaccuracies in the fees stated on this description page, in the bidding confirmation pop up or in the particulars. Buyers should check the contents of the legal pack and special conditions for accurate information on fees. Where there is a conflict between the fees stated in the particulars, the bid information box above or the bidding confirmation pop up and the contents of the legal pack, the contents of the legal pack shall prevail.
Stamp Duty Land Tax or Land and Buildings Transaction Tax may also apply in some circumstances.
Refreshing the Page
To make sure that you are seeing the latest information for the property, we recommend you refresh the page. This ensures you're seeing live information and not stored (cached) data. If the page disconnects from the Internet, refreshing the page will show the latest information.
Disclaimer
All information relating to this property, including descriptions, pictures and other related information has been provided by Hunters. All legal documents in relation to this property have been provided by the Vendor's solicitor. Neither Bamboo Proptech or any individual in employment with Bamboo Proptech makes any warranty as to the accuracy or completeness of any of the property information.
These particulars do not form part of any contract or offer. Buyers should not rely on them as statements of representation and should check that the information is correct by inspection or otherwise. Where there is a conflict between the contents of the legal documents and these particulars, the information contained in the legal documents shall prevail.
Pursuant to the Auctioneer Act 1845, this auction is being conducted by the auctioneer stated above. All participants in this online auction shall note that both the Auctions (Bidding Agreements) Act 1927 and 1969 shall apply.
Where stated in the bid box above, you agree that Bamboo may pre-authorise your card for the amount of the Buyer's fee and Deposit. You will only be charged if you are the winning buyer. We will release the pre-authorisation at the end of the auction. You card issuer may take up to 10 working days for this amount to be available to you in your account.


